5 locali in vendita

Pagani, Via Trotta Gustavo
€ 157.000
5 locali 5 locali
155 Mq 155 Mq
2 bagni 2 bagni

5 locali in vendita

Pagani, Via Trotta Gustavo

Descrizione annuncio

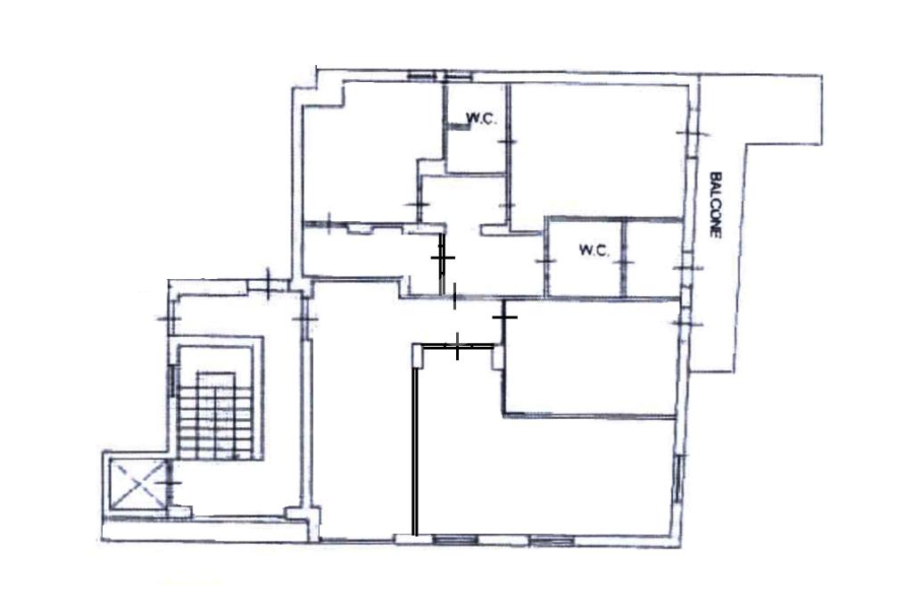
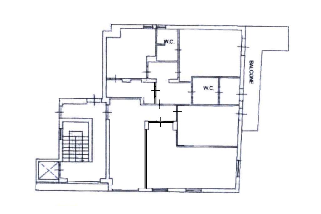
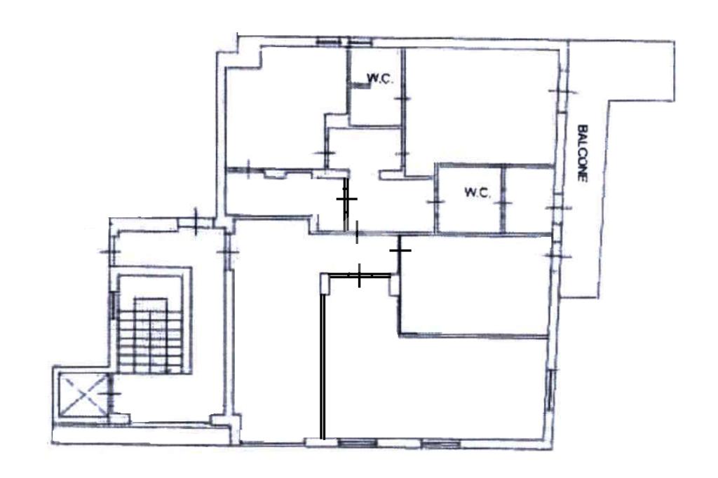
In zona centrale di Pagani proponiamo un immobile pronto spazioso è ottimale per un accogliente soggiorno, il corridoio centrale conduce alle tre camere principali, supportate da una cucina abitabile con doppia esposizione e ai doppi pratico ripostiglio ottimizza l'organizzazione degli spazi interni e il balcone di pertinenza assicurano luce naturale durante tutta la vero punto di forza di questa proposta è la sua incredibile versatilità: sebbene attualmente accatastato come ufficio, abbiamo la possibilità di cambiare la destinazione d'uso, che grazie alla sua distribuzione degli ambienti si presta perfetta a trasformarla in un'abitazione moderna e confortevole.

Prenota la tua visita gratuita!

Vuoi saperne di più o fissare un appuntamento?
Siamo a tua completa disposizione telefonicamente o via WhatsApp al 081 1874 4831.

Per ricevere informazioni in tempo reale, scrivici anche via email il nostro team ti offrirà supporto completo, sia per la parte immobiliare che per quella finanziaria.

Seguici su Facebook (Gruppo Tecnocasa Pagani) e Instagram (@tecnocasapagani) per restare sempre aggiornato sulle nuove proposte.

E non dimenticare di scaricare l'app Tecnocasa da App Store o Play Store: potrai consultare comodamente tutte le offerte direttamente dal tuo cellulare!

Mostra tutto

Nelle vicinanze

Trasporto pubblico Trasporto pubblico
stazione di Pagani
stazione di Pagani
630 m
stazione di Nocera Inferiore
stazione di Nocera Inferiore
1,7 Km
Via Califano
Via Califano
1,7 Km
Via Buonarroti
Via Buonarroti
1,9 Km
Scuole Scuole
Scuola dell'infanzia Manzoni
100 m
Scuole
550 m
O Grado S. Alfonso Dei Liguori
570 m
Scuola Media Statale A.Criscuolo
620 m
Liceo Scientifico B. Mangino
650 m
Farmacia Farmacia
Farmacia Dott. Contaldi
430 m
Parafarmacia
660 m
Farmacia Dott.ri Borrelli
790 m
Farmacia
1,0 Km
Farmacia Comunale Pagani
1,2 Km
Ospedali Ospedali
Andrea Tortora
900 m
Villa dei Fiori
950 m
Villa Chiarugi
1,3 Km
Ospedali
2,5 Km
Ospedale Umberto I
3,0 Km
Supermercati Supermercati
Supermercati
560 m
Supermercato Etè
560 m
Todis
670 m
Etè
840 m
Lidl
920 m
Negozi Negozi
Pane Pizza & Sfizi
790 m
Latte & Miele
830 m
Benedetto
830 m
Boutique Rosemary
1,8 Km
Bazar
1,9 Km
Bar Bar
Bar del Sole
180 m
Santa Lucia
630 m
Baretto Santa Lucia
710 m
Bar Ferrari
820 m
Bar
1,2 Km
Ristoranti Ristoranti
Boomerang
420 m
Pasticceria Aurora
760 m
La Cupa del lupo
790 m
Pizzeria Coralli
870 m
Pizzeria Madison
1,1 Km
Mostra tutto

Caratteristiche

Rif.:
61195513
Piano:
1 di 2 con ascensore (Piano medio)
Balconi:
1
Camere da letto:
3
Arredamento:
Assente
Condizionamento:
Assente
Mostra tutto
Prezzo Prezzo
€ 157.000
Rata mutuo Rata mutuo
€ 740 / mese
Spese annue Spese annue
€ 360
Proponi il tuo prezzoProponi il tuo prezzo
Immobile valutato con T·Valuta

Classe Energetica

G
G
G
G
G
G
G
G
G
EP globale non rinnovabile:
175.00 kW h/m² anno
EP globale rinnovabile:
175.00 kW h/m² anno
EP invernale del fabbricato:
EP estiva del fabbricato:
Anno di costruzione:
2005
Riscaldamento:
Autonomo
Tipo impianto:
A radiatori
Tipo alimentazione:
Metano

Ti interessa visionare l'immobile?

Fissa un appuntamento  Fissa un appuntamento

Richiedi informazioni

Clicca su Leggi per aprire l'informativa
* Questi campi sono obbligatori

Calcola il tuo mutuo

Semplice e senza impegno
Anticipo

( % )
Mutuo

( % )

pochi semplici passi

inserisci i tuoi dati
Questionario completato
Grazie per aver richiesto un appuntamento senza impegno con un nostro Consulente del Credito e Assicurativo.

Hai inserito correttamente tutti i dati necessari e a breve riceverai una e-mail con un link da convalidare per inviare i tuoi dati.
Affiliato
Connessione Pagani Sas
Via Arcivescovo Cesarano, 106/108 84016 Pagani (SA)

Il nostro staff


  • Rosa Cannavale
    Affiliata

  • Annapaola Rossi
    Coordinatrice

  • Erika Todisco
    Responsabile

  • Catello Mario Schettino
    Affiliato
Via Arcivescovo Cesarano, 106/108 84016 Pagani (SA)
Zona: Pagani
Mostra su mappa
Affiliato
Connessione Pagani Sas
Via Arcivescovo Cesarano, 106/108 84016 Pagani (SA)

2026 Tecnocasa Franchising S.p.A. - P. IVA 08365160152 - Via Monte Bianco 60/A 20089 Rozzano (MI). Ogni agenzia ha un proprio titolare ed è autonoma. Privacy policy | Policy utilizzo | Cookie policy