Bilocale in vendita

Pagani, Via Giacomo Matteotti
€ 55.000
Prezzo aggiornato
2 locali 2 locali
73 Mq 73 Mq
2 bagni 2 bagni

Bilocale in vendita

Pagani, Via Giacomo Matteotti

Descrizione annuncio

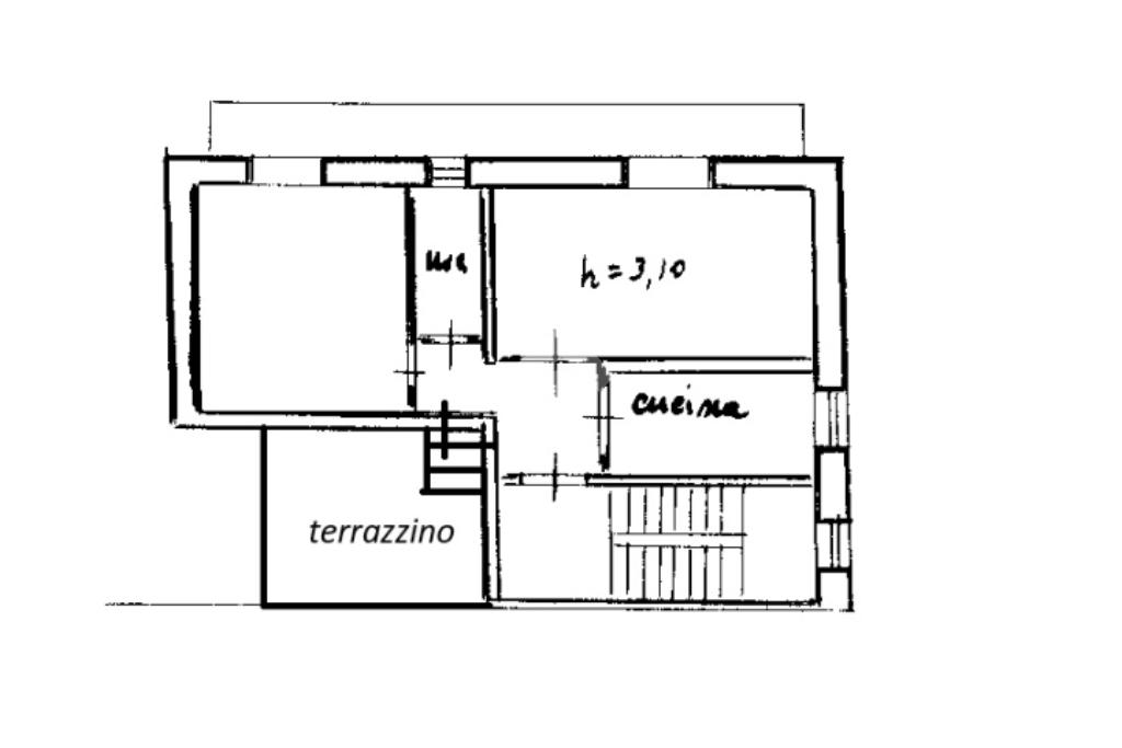
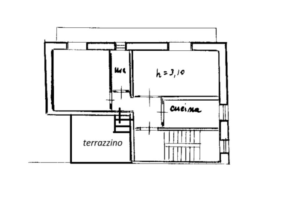
L’appartamento è situato al secondo piano di un mini condominio in zona strategica e ben collegata.

L'immobile si sviluppa su una superficie ben distribuita, comprendendo due camere ed una cucina abitabile. La soluzione si distingue per l’ottima luminosità, favorita dalla doppia esposizione e dalla presenza di un balcone che garantisce luce naturale a tutti gli ambienti.

A completamento, è presente anche un piccolo terrazzino, perfetto come spazio esterno. Alla proprietà si unisce un ulteriore ambiente posto al piano terra, composta da una stanza con piccolo bagno e angolo cottura, ideale come studio o spazio per ospiti.

Prenota la tua visita gratuita!

Vuoi saperne di più o fissare un appuntamento?
Siamo a tua completa disposizione telefonicamente o via WhatsApp al 081 1874 4831.

Per ricevere informazioni in tempo reale, scrivici anche via email il nostro team ti offrirà supporto completo, sia per la parte immobiliare che per quella finanziaria.

Seguici su Facebook (Gruppo Tecnocasa Pagani) e Instagram (@tecnocasapagani) per restare sempre aggiornato sulle nuove proposte.

E non dimenticare di scaricare l'app Tecnocasa da App Store o Play Store: potrai consultare comodamente tutte le offerte direttamente dal tuo cellulare!

Mostra tutto

Nelle vicinanze

Trasporto pubblico Trasporto pubblico
stazione di Pagani
stazione di Pagani
490 m
stazione di Nocera Inferiore
stazione di Nocera Inferiore
1,5 Km
Via Califano
Via Califano
1,9 Km
Via Buonarroti
Via Buonarroti
2,1 Km
Scuole Scuole
Scuole
290 m
O Grado S. Alfonso Dei Liguori
300 m
Scuola dell'infanzia Manzoni
370 m
Istituto educativo "Preziosissimo Sangue"
520 m
Liceo Scientifico B. Mangino
800 m
Farmacia Farmacia
Farmacia Dott. Contaldi
370 m
Parafarmacia
390 m
Farmacia Dott.ri Borrelli
710 m
Farmacia
1,2 Km
Farmacia Comunale Pagani
1,3 Km
Ospedali Ospedali
Andrea Tortora
660 m
Villa dei Fiori
860 m
Villa Chiarugi
1,0 Km
Ospedali
2,3 Km
Ospedale Umberto I
2,7 Km
Supermercati Supermercati
Todis
390 m
Etè
610 m
Lidl
660 m
Supermercati
660 m
Supermercato Etè
660 m
Negozi Negozi
Pane Pizza & Sfizi
720 m
Latte & Miele
770 m
Benedetto
780 m
Antico Forno Izzo Ciro
1,9 Km
Boutique Rosemary
2,0 Km
Bar Bar
Bar del Sole
150 m
Santa Lucia
730 m
Bar Ferrari
750 m
Baretto Santa Lucia
830 m
Bar
970 m
Ristoranti Ristoranti
Boomerang
670 m
Pizzeria Coralli
780 m
Pizzeria Madison
790 m
Da Biagio
880 m
Pasticceria Aurora
950 m
Mostra tutto

Caratteristiche

Rif.:
61170893
Piano:
2 di 3 (Piano medio)
Balconi:
1
Terrazzi:
1
Camere da letto:
2
Arredamento:
Assente
Mostra tutto
Prezzo Prezzo
€ 55.000
Rata mutuo Rata mutuo
€ 259 / mese
Spese annue Spese annue
€ 0
Proponi il tuo prezzoProponi il tuo prezzo
Immobile valutato con T·Valuta

Classe Energetica

G
G
G
G
G
G
G
G
G
EP globale non rinnovabile:
175.00 kW h/m² anno
EP globale rinnovabile:
175.00 kW h/m² anno
EP invernale del fabbricato:
EP estiva del fabbricato:
Anno di costruzione:
1980
Riscaldamento:
Autonomo
Tipo impianto:
A stufa
Tipo alimentazione:
Altro

Prezzo ridotto di €1 (16%%)

Ti interessa visionare l'immobile?

Fissa un appuntamento  Fissa un appuntamento

Richiedi informazioni

Clicca su Leggi per aprire l'informativa
* Questi campi sono obbligatori

Calcola il tuo mutuo

Semplice e senza impegno
Anticipo

( % )
Mutuo

( % )

pochi semplici passi

inserisci i tuoi dati
Questionario completato
Grazie per aver richiesto un appuntamento senza impegno con un nostro Consulente del Credito e Assicurativo.

Hai inserito correttamente tutti i dati necessari e a breve riceverai una e-mail con un link da convalidare per inviare i tuoi dati.
Affiliato
Connessione Pagani Sas
Via Arcivescovo Cesarano, 106/108 84016 Pagani (SA)

Il nostro staff


  • Rosa Cannavale
    Affiliata

  • Annapaola Rossi
    Coordinatrice

  • Erika Todisco
    Responsabile

  • Catello Mario Schettino
    Affiliato
Via Arcivescovo Cesarano, 106/108 84016 Pagani (SA)
Zona: Pagani
Mostra su mappa
Affiliato
Connessione Pagani Sas
Via Arcivescovo Cesarano, 106/108 84016 Pagani (SA)

2026 Tecnocasa Franchising S.p.A. - P. IVA 08365160152 - Via Monte Bianco 60/A 20089 Rozzano (MI). Ogni agenzia ha un proprio titolare ed è autonoma. Privacy policy | Policy utilizzo | Cookie policy