Quadrilocale in vendita

Pagani, Via D. Ammaturo
€ 225.000
4 locali 4 locali
174 Mq 174 Mq
2 bagni 2 bagni

Quadrilocale in vendita

Pagani, Via D. Ammaturo

Descrizione annuncio

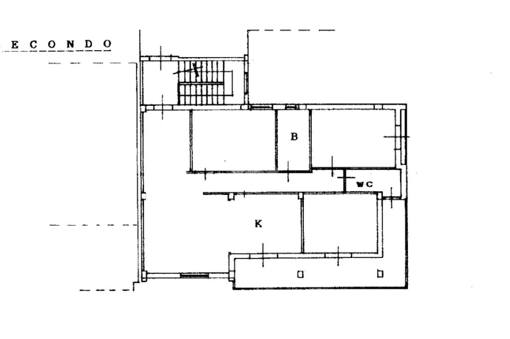
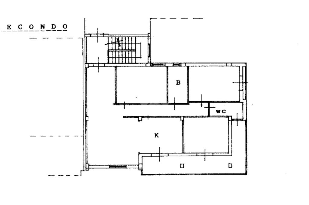
Proponiamo in vendita ampia e luminosa soluzione abitativa.
L’immobile grazie alla sua generosa metratura e la distribuzione degli ambienti garantisce funzionalità per tutti i tipi di nuclei familiari.

L’ingresso conduce a un salone ampio ideale per momenti di convivialità e relax. La zona notte è composta da tre camere da letto tutte ben dimensionate, con la presenza del doppio servizio che garantisce un ulteriore comfort. La soluzione dispone di un balcone terrazzato, un sottotetto di eguale metratura perfetto per realizzare un aggiuntivo spazio abitativo o una seconda unità adatta alle esigenze di tutta la famiglia. A completare un box auto di pertinenza, che aggiunge praticità e valore all’immobile.

Prenota la tua visita gratuita!
Vuoi saperne di più o fissare un appuntamento?
Siamo a tua completa disposizione telefonicamente o via WhatsApp al 081 1874 4831.
Per ricevere informazioni in tempo reale, scrivici anche via email il nostro team ti offrirà supporto completo, sia per la parte immobiliare che per quella finanziaria.
Seguici su Facebook (Gruppo Tecnocasa Pagani) e Instagram (@tecnocasapagani) per restare sempre aggiornato sulle nuove proposte.
E non dimenticare di scaricare l'app Tecnocasa da App Store o Play Store: potrai consultare comodamente tutte le offerte direttamente dal tuo cellulare!

Mostra tutto

Nelle vicinanze

Trasporto pubblico Trasporto pubblico
stazione di Pagani
stazione di Pagani
380 m
stazione di Nocera Inferiore
stazione di Nocera Inferiore
1,9 Km
Via Califano
Via Califano
1,5 Km
Via Buonarroti
Via Buonarroti
1,6 Km
Scuole Scuole
Liceo Scientifico B. Mangino
300 m
Scuole
310 m
Scuola dell'infanzia Manzoni
530 m
Istituto educativo "Preziosissimo Sangue"
550 m
Scuola Media Statale A.Criscuolo
560 m
Farmacia Farmacia
Farmacia Dott. Contaldi
230 m
Farmacia Dott.ri Borrelli
380 m
Parafarmacia
760 m
Farmacia Comunale Pagani
800 m
Farmacia
820 m
Ospedali Ospedali
Andrea Tortora
780 m
Villa dei Fiori
1,4 Km
Villa Chiarugi
1,5 Km
Ospedali
2,6 Km
Supermercati Supermercati
Supermercati
140 m
Supermercato Etè
140 m
Todis
820 m
Etè
1,1 Km
Lidl
1,1 Km
Negozi Negozi
Pane Pizza & Sfizi
370 m
Benedetto
390 m
Latte & Miele
390 m
Gran Bazar
1,6 Km
Boutique Rosemary
1,6 Km
Bar Bar
Santa Lucia
190 m
Baretto Santa Lucia
310 m
Bar Ferrari
400 m
Bar del Sole
590 m
Bar
1,5 Km
Ristoranti Ristoranti
Pizzeria Coralli
470 m
Pasticceria Aurora
500 m
La Cupa del lupo
540 m
Boomerang
820 m
Pizzeria Madison
1,2 Km
Mostra tutto

Caratteristiche

Rif.:
61170574
Piano:
2 di 2 (Piano medio)
Box:
1
Balconi:
2
Terrazzi:
1
Camere da letto:
3
Mostra tutto
Prezzo Prezzo
€ 225.000
Rata mutuo Rata mutuo
€ 1.061 / mese
Spese annue Spese annue
€ 540
Proponi il tuo prezzoProponi il tuo prezzo
Immobile valutato con T·Valuta

Classe Energetica

G
G
G
G
G
G
G
G
G
EP globale non rinnovabile:
175.00 kW h/m² anno
EP globale rinnovabile:
175.00 kW h/m² anno
EP invernale del fabbricato:
EP estiva del fabbricato:
Anno di costruzione:
1987
Riscaldamento:
Autonomo
Tipo impianto:
A radiatori
Tipo alimentazione:
Metano

Ti interessa visionare l'immobile?

Fissa un appuntamento  Fissa un appuntamento

Richiedi informazioni

Clicca su Leggi per aprire l'informativa
* Questi campi sono obbligatori

Calcola il tuo mutuo

Semplice e senza impegno
Anticipo

( % )
Mutuo

( % )

pochi semplici passi

inserisci i tuoi dati
Questionario completato
Grazie per aver richiesto un appuntamento senza impegno con un nostro Consulente del Credito e Assicurativo.

Hai inserito correttamente tutti i dati necessari e a breve riceverai una e-mail con un link da convalidare per inviare i tuoi dati.
Affiliato
Connessione Pagani Sas
Via Arcivescovo Cesarano, 106/108 84016 Pagani (SA)

Il nostro staff


  • Rosa Cannavale
    Affiliata

  • Annapaola Rossi
    Coordinatrice

  • Erika Todisco
    Responsabile

  • Catello Mario Schettino
    Affiliato
Via Arcivescovo Cesarano, 106/108 84016 Pagani (SA)
Zona: Pagani
Mostra su mappa
Affiliato
Connessione Pagani Sas
Via Arcivescovo Cesarano, 106/108 84016 Pagani (SA)

2026 Tecnocasa Franchising S.p.A. - P. IVA 08365160152 - Via Monte Bianco 60/A 20089 Rozzano (MI). Ogni agenzia ha un proprio titolare ed è autonoma. Privacy policy | Policy utilizzo | Cookie policy